借りる
買う
投資
物件検索
売買
土地の売買
奈良県の売買
葛城市の売買
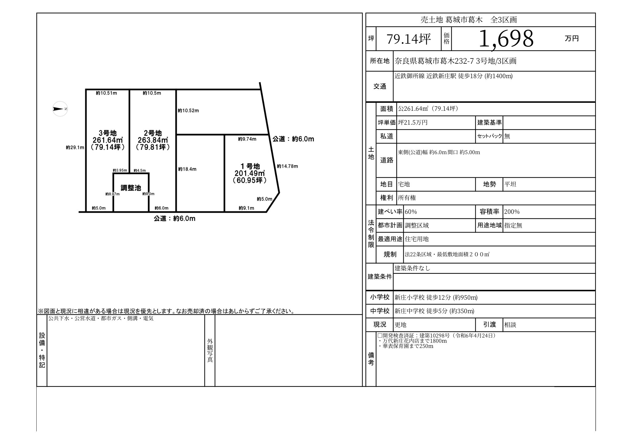
土地の物件詳細
土地の物件詳細
拡大する
所在地
奈良県葛城市葛木
マップで見る
この物件を取り扱うエージェント
物件 ご紹介アカウント
取扱物件数
42
株式会社丸山不動産販売
奈良県奈良市芝辻町4丁目6番8
0742936000
http://maruyamafudousan-hanbai.com/
この担当者に問い合わせる