土地の物件詳細

物件チラシ

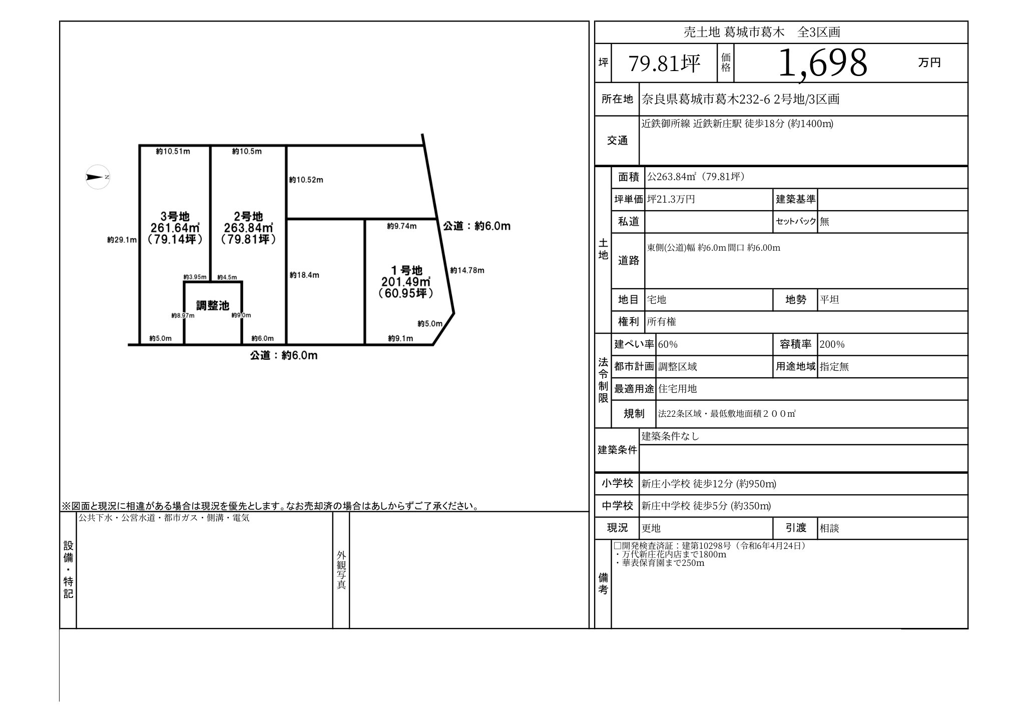
所在地

奈良県葛城市葛木

マップで見る

この物件を取り扱うエージェント

物件 ご紹介アカウント

取扱物件数 46

株式会社丸山不動産販売
奈良県奈良市芝辻町4丁目6番8