Open Room
買う
借りる
マンション
一戸建て
1
土地
その他
フィルター
ホーム
売買
埼玉県
入間市
豊岡
豊岡の検索結果 : 1件
並び替え:新着順
システムキッチン
プロパンガス
電気
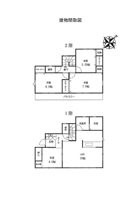
2,288万円
埼玉県入間市豊岡2丁目 中古戸建
埼玉県入間市豊岡2丁目9番2号2
111.1 m²
/
4LDK
2016
一戸建て
入間市駅 徒歩15分
近隣エリア
クリックして地図を表示