
| 年 | 価格/面積 | 総戸数 |
|---|---|---|
| 2025 | 14.4万円 Prices: 12.1万円 / 12.5万円 / 21.6万円 / 11.2万円 | 4 |
| 2023 | 10.9万円 Prices: 10.7万円 / 9.8万円 / 12万円 / 11万円 / 9.3万円 / 13.5万円 / 9.8万円 | 7 |
| 2022 | 10.9万円 Prices: 10.7万円 / 9.8万円 / 11.9万円 / 11万円 / 9.3万円 / 13.6万円 / 9.8万円 | 7 |
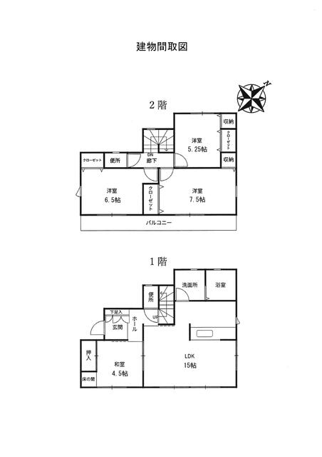
| 物件名 | 埼玉県入間市豊岡2丁目 中古戸建 |
|---|---|
| 建物名 | - |
| 所在地 | 埼玉県入間市豊岡2丁目9番2号2 |
| 間取り | LDK |
| 価格 | 2,288万円 |
|---|
| 土地面積 | 111.11 |
|---|---|
| 建物面積 | 93.56 |
| 私道負担 | - |
| セットバック | - |
| アクセス | 入間市 (徒歩15分) |
|---|
| 築年月 | 2016年10月 |
|---|---|
| 階建 | 2階 |
| 地下階建 | - |
| 構造 | 木造 |
| 販売戸数 | - |
| 地勢 | 平坦 |
|---|
| 駐車場空あり | - |
|---|---|
| 駐車場月額 | - |
| 用途地域 | 第1種中高層住居専用地域 |
|---|---|
| 都市計画 | 市街化区域 |
| 建蔽率 | 60% |
| 容積率 | 200% |
| 投資用 | × |
|---|---|
| 表面利回り | - |
| 現況 | 空家 |
|---|---|
| 現況詳細 | 空家 |
| 引渡時期 | - |