Open Room Logo
1 / 11

埼玉県入間市豊岡2丁目 中古戸建

埼玉県入間市豊岡2丁目9番2号2

価格

2,288万円

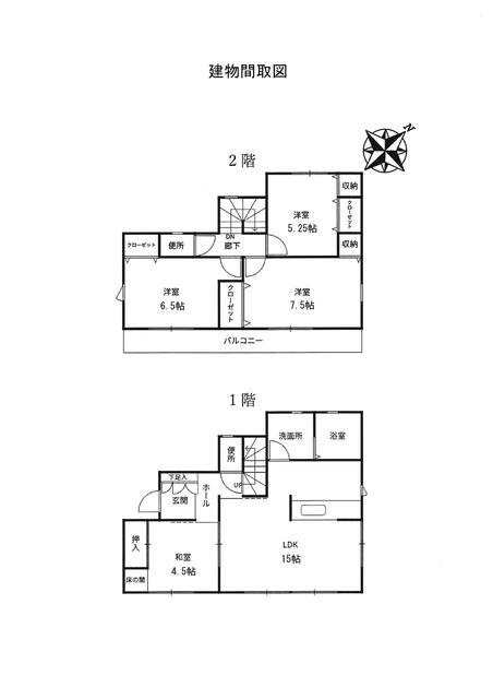
間取りと広さ

LDK / 93.6 m²
掲載日
9/27/2025
物件種別
一戸建て
築年数
2016
価格/面積
24.5万円
最終更新日: 2025年11月16日
物件情報は不動産エージェント提供のものですが、掲載時点から状況が変わり現在は最新でない場合があります。内容の正確性について当サイトは保証・責任を負いません。詳細は担当エージェントへお問い合わせください。

特徴・設備

システムキッチン

その他

プロパンガス
電気
上水道
下水道
追焚機能
温水洗浄便座
シャンプードレッサー
照明器具付き
モニター付きインターホン

交通

最寄り駅

西武池袋線
徒歩13分

周辺環境

周辺の学校

エリア情報

学区 (小学校)
高倉小学校
学区 (中学校)
豊岡中学校
用途地域
第1種中高層住居専用地域
都市計画区域
入間都市計画区域
区域区分
市街化区域
立地適正化計画
N/A
都市計画道路
N/A

地価公示価格推移

価格/面積総戸数
202514.4万円
Prices:
12.1万円 / 12.5万円 / 21.6万円 / 11.2万円
4
202310.9万円
Prices:
10.7万円 / 9.8万円 / 12万円 / 11万円 / 9.3万円 / 13.5万円 / 9.8万円
7
202210.9万円
Prices:
10.7万円 / 9.8万円 / 11.9万円 / 11万円 / 9.3万円 / 13.6万円 / 9.8万円
7

物件詳細

基本情報

物件名埼玉県入間市豊岡2丁目 中古戸建
建物名-
所在地埼玉県入間市豊岡2丁目9番2号2
間取りLDK

金額

価格2,288万円

広さ

土地面積111.11
建物面積93.56
私道負担-
セットバック-

アクセス

アクセス
入間市 (徒歩15分)

建物情報

築年月2016年10月
階建2階
地下階建-
構造木造
販売戸数-

土地情報

地勢平坦

駐車場

駐車場空あり-
駐車場月額-

法規

用途地域第1種中高層住居専用地域
都市計画市街化区域
建蔽率60%
容積率200%

収益物件

投資用×
表面利回り-

引渡

現況空家
現況詳細空家
引渡時期-
ご質問はありますか?
資料請求 / 内見予約
三浦 元大
三浦 元大
彩西不動産株式会社
プロフィールをみる
この担当者に問い合わせる