Open Room
openrm.jp
買う
借りる
ホーム
賃貸
大阪府
大阪市淀川区
プランドール新北野
検索結果に戻る
1 / 3
プランドール新北野
大阪府大阪市淀川区新北野1丁目
賃料
12.6万円 / 月
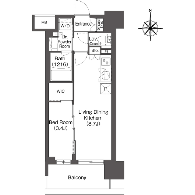
間取りと広さ
LDK /
33.3 m²
掲載日
2/3/2026
物件種別
マンション
築年数
2026
階
10
賃料/面積
3,789.5円
最終更新日: 2026年2月26日
物件情報は不動産エージェント提供のものですが、掲載時点から状況が変わり現在は最新でない場合があります。内容の正確性について当サイトは保証・責任を負いません。詳細は担当エージェントへお問い合わせください。
特徴・設備
システムキッチン
浴室乾燥機
エアコン
バリアフリー
ウォークインクローゼット
宅配ボックス
オートロック
その他
都市ガス
追焚機能
バス専用
トイレ専用
バス・トイレ別
温水洗浄便座
シャンプードレッサー
室内洗濯機置場
フローリング
エレベータ
ディンプルキー
モニター付きインターホン
交通
最寄り駅
十三駅
阪急神戸本線
徒歩6分
十三駅
阪急宝塚本線
徒歩7分
十三駅
阪急京都本線
徒歩7分
この建物の他の空室
オートロック
バイク置き場
駐輪場
13.1万円
+ 13,000
/ 月
コンフォリア新大阪宮原Q
大阪府大阪市淀川区宮原5丁目8-24
31.7 m²
/
LDK
2025
マンション
東三国駅 徒歩6分
周辺マップ
駅
駅・バス停
学校
ハザードマップ
大阪府立北野高等学校
大阪コミュニティワーカー専門学校
大阪市立新北野中学校
大阪市立神津小学校
ひかり幼稚園
大阪市立塚本小学校
幼保連携型認定こども園博愛社こども園
履正社国際医療スポーツ専門学校
大阪市立田川幼稚園
塚本幼稚園幼児教育学園
英真学園高等学校
大阪市立十三小学校
大阪市立十三中学校
大阪市立田川小学校
アケミ幼稚園
木川幼稚園
大阪東邦幼稚園
十三駅
十三駅
十三駅
塚本駅
12.6万円
周辺環境
周辺の学校
大阪府立北野高等学校
高校
0.2 km
大阪コミュニティワーカー専門学校
School
0.3 km
大阪市立新北野中学校
中学校
0.4 km
エリア情報
学校 (小学校)
N/A
学校 (中学校)
N/A
都市計画
N/A
地価公示価格推移
年
価格/面積
総戸数
2025
37.2万円
Prices:
59.9万円 / 27万円 / 31.5万円 / 30.5万円
4
2023
28.1万円
Prices:
26.3万円 / 41.2万円 / 28.6万円 / 21.3万円 / 22.9万円
5
2022
27.8万円
Prices:
26.2万円 / 40.7万円 / 28.4万円 / 21.2万円 / 22.7万円
5
すべて表示
ご質問はありますか?
資料請求 / 内見予約
田崎 輝
Brilliant(同)
プロフィールをみる
この担当者に問い合わせる