
| 年 | 平米単価 | 総戸数 |
|---|---|---|
| 2025 | 22.7万円 Prices: 29万円 / 19.1万円 / 27.5万円 / 15.2万円 | 4 |
| 2023 | 18.6万円 Prices: 21.2万円 / 24.5万円 / 36万円 / 16.8万円 / 7,900円 / 15.9万円 / 15.3万円 | 7 |
| 2022 | 17.7万円 Prices: 21.1万円 / 35.9万円 / 16.7万円 / 8,000円 / 16万円 / 15.4万円 | 6 |
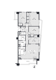
| 物件名 | シエールグラン洋光台南公園 |
|---|---|
| 建物名 | シエールグラン洋光台南公園 |
| 所在地 | 神奈川県横浜市磯子区洋光台6丁目1-10 |
| 部屋番号 | 512 |
| 間取り | 4LDK |
| バルコニー方向 | 南 |
| 賃料 | 19.8万円 |
|---|---|
| 管理費 | 12,000円 |
| 共益費 | - |
| 敷金 | 1 |
| 礼金 | 1 |
| 保証金 | - |
| 敷引き | - |
| 権利金 | - |
| 鍵交換代 | - |
| 初回保証委託料 | - |
| 年間保証委託料 | - |
| 契約期間 | 2 |
| 定期借家 | × |
|---|---|
| 賃貸借期間 | null |
| 更新可 | - |
| 更新料 | 1 |
| 専有面積 | 92.16 |
|---|---|
| バルコニー面積 | - |
| 専用庭面積 | - |
| アクセス | 洋光台 (徒歩9分) 杉田 (徒歩28分) 港南台 (徒歩27分) |
|---|
| 築年月 | 2002年8月 |
|---|---|
| 階部分 | 5階 |
| 階建 | 5階 |
| 地下階建 | - |
| 構造 | RC造 |
| 駐車場空あり | - |
|---|---|
| 駐車場月額 | - |
| 現況 | 空家 |
|---|---|
| 現況詳細 | 空家 |
| 引渡時期 | - |