Open Room Logo
1 / 11

ZOOM渋谷神山町

東京都渋谷区神山町17-1

賃料

17.4万円 / 月
管理費: 10,000円 / 月

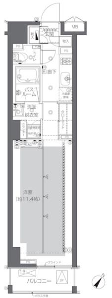
間取りと広さ

K / 33.8 m²
掲載日
2/28/2026
物件種別
マンション
築年数
2018
2
賃料/面積
5,155.6円
最終更新日: 2026年3月2日
物件情報は不動産エージェント提供のものですが、掲載時点から状況が変わり現在は最新でない場合があります。内容の正確性について当サイトは保証・責任を負いません。詳細は担当エージェントへお問い合わせください。

特徴・設備

システムキッチン
浴室乾燥機
エアコン
床暖房
宅配ボックス
駐輪場
バイク置き場
オートロック

その他

都市ガス
下水道
給湯
追焚機能
バス・トイレ別
シャワー
温水洗浄便座
洗面所
洗面台
室内洗濯機置場
フローリング
照明器具付き
インターネット対応
24時間換気システム
収納スペース
エレベータ
デザイナーズマンション
ディンプルキー
モニター付きインターホン
分譲タイプ

交通

最寄り駅

東京メトロ千代田線
徒歩8分
小田急小田原線
徒歩9分
京王井の頭線
徒歩10分

周辺マップ

周辺環境

エリア情報

学校 (小学校)
神南小学校
学校 (中学校)
松濤中学校
都市計画
N/A

地価公示価格推移

価格/面積総戸数
2025845.1万円
Prices:
139万円 / 1,200万円 / 215万円 / 1,940万円 / 1,850万円 / 805万円 / 225万円 / 1,050万円 / 182万円
9
2023625.8万円
Prices:
130万円 / 186万円 / 142万円 / 580万円 / 145万円 / 214万円 / 1,580万円 / 1,590万円 / 2,780万円 / 2,190万円 / 93.6万円 / 118万円 / 555万円 / 144万円 / 85.9万円 / 110万円 / 142万円 / 152万円 / 134万円 / 1,970万円 / 101万円
21
2022651.2万円
Prices:
129万円 / 184万円 / 139万円 / 583万円 / 145万円 / 214万円 / 1,580万円 / 1,600万円 / 2,780万円 / 2,190万円 / 92.3万円 / 566万円 / 144万円 / 84.8万円 / 107万円 / 140万円 / 146万円 / 132万円 / 1,970万円 / 98.5万円
20
ご質問はありますか?
資料請求 / 内見予約
首都圏 1課①
首都圏 1課①
株式会社FPR
プロフィールをみる
この担当者に問い合わせる