Open Room Logo
1 / 1

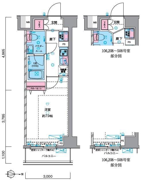
ACP Residence 亀戸

東京都江東区亀戸5丁目27番9号

賃料

12.5万円 / 月

間取りと広さ

1K / 25.2 m²
掲載日
3/4/2026
物件種別
マンション
築年数
2024
10
賃料/面積
4,954.4円
最終更新日: 2026年2月5日
物件情報は不動産エージェント提供のものですが、掲載時点から状況が変わり現在は最新でない場合があります。内容の正確性について当サイトは保証・責任を負いません。詳細は担当エージェントへお問い合わせください。

特徴・設備

エレベーター
オートロック
バルコニー
エアコン
浴室乾燥機
システムキッチン
防犯カメラ
インターネット使用料無料

その他

室内洗濯機置場
給湯
都市ガス
シャワー
トイレ
モニタ付インターホン
シャワー付洗面化粧台
温水洗浄便座
クローゼット
フローリング
照明器具
洗面所独立
人感センサー付照明
シューズボックス
ダブルロックドア

交通

最寄り駅

東武亀戸線
徒歩4分
東武亀戸線
徒歩6分
総武本線
徒歩7分

周辺環境

エリア情報

学校 (小学校)
水神小学校
学校 (中学校)
第二亀戸中学校
都市計画
近隣商業地域

地価公示価格推移

価格/面積総戸数
202572.3万円
Prices:
72万円 / 40.3万円 / 93万円 / 55.6万円 / 89.5万円 / 89万円 / 120万円 / 52.5万円 / 62.5万円 / 49万円
10
202364.4万円
Prices:
44万円 / 45.7万円 / 192万円 / 62.2万円 / 44.7万円 / 55.2万円 / 85万円 / 37.5万円 / 41.3万円 / 36万円
10
202263.7万円
Prices:
43.4万円 / 45万円 / 191万円 / 61.4万円 / 44.1万円 / 54.5万円 / 84万円 / 37万円 / 40.7万円 / 35.5万円
10

近くの物件

Property 0Property 1Property 2Property 3Property 4Property 5Property 6Property 7Property 8Property 9
オートロック駐輪場宅配ボックス
10.4万円 + 15,000 / 月
レガリス亀戸

東京都江東区亀戸7丁目30-19-601

25.7 m²/K
2024
マンション
亀戸 徒歩9分
Property 0Property 1Property 2Property 3Property 4Property 5
1 / 3 ユニット
オートロックバイク置き場駐輪場
12.5万円 / 月
ルネサンスコート亀戸SOUTH

東京都江東区亀戸6丁目40-25

25.5 m²/K
2023
マンション
亀戸 徒歩5分
Property 0
浴室乾燥機システムキッチンエレベーター
9.2万円 + 8,000 / 月
グランヴァンアクアヴェル亀戸

東京都江東区亀戸2丁目30番10号

22.8 m²/1K
2008
マンション
亀戸駅 徒歩3分
Property 0Property 1Property 2Property 3Property 4Property 5Property 6Property 7Property 8Property 9Property 10
オートロック駐輪場エアコン
9.2万円 + 5,000 / 月
Gates1

東京都江東区亀戸3丁目42-10

24.1 m²/K
2009
マンション
小村井駅 徒歩11分
Property 0
エアコン浴室乾燥機オートロック
7.3万円 + 2,000 / 月
オリンピア亀戸

東京都江東区亀戸4丁目28-5

14.9 m²/1K
2012
マンション
亀戸駅 徒歩10分
Property 0Property 1Property 2
駐輪場エアコン都市ガス
9.2万円 / 月
ファストコート亀戸

東京都江東区亀戸1丁目40-5

26.3 m²/K
2006
マンション
亀戸 徒歩2分
Property 0Property 1Property 2Property 3Property 4Property 5Property 6Property 7Property 8Property 9Property 10
1 / 2 ユニット
ペット可オートロックバイク置き場
24.4万円 / 月
アルファコート亀戸2

東京都江東区亀戸5丁目43-4

60 m²/LDK
2024
マンション
亀戸 徒歩7分
Property 0
システムキッチンエアコンバルコニー
20.8万円 + 15,000 / 月
STANDZ亀戸

東京都江東区亀戸2丁目35-10

41.9 m²/2LDK
2025
マンション
亀戸駅 徒歩5分
Property 0Property 1Property 2Property 3Property 4Property 5Property 6Property 7Property 8Property 9Property 10
1 / 4 ユニット
ペット可オートロックバイク置き場
11.2万円 / 月
ドゥーエ亀戸

東京都江東区亀戸6丁目28-2

25.7 m²/K
2022
マンション
亀戸 徒歩3分
Property 0
ウォークインクローゼット浴室乾燥機エアコン
11.7万円 / 月
エムズイースト亀戸Ⅱ

東京都江東区亀戸2丁目

25.1 m²/1K
2019
マンション
亀戸駅 徒歩6分
Property 0
浴室乾燥機エアコンオートロック
7.9万円 + 8,000 / 月
フラシア亀戸

東京都江東区亀戸3丁目25-8

19.8 m²/1K
2019
マンション
小村井駅 徒歩11分
Property 0Property 1Property 2Property 3Property 4Property 5Property 6Property 7Property 8Property 9
オートロック駐輪場宅配ボックス
11万円 / 月
ジェノヴィア押上スカイガーデン

東京都江東区亀戸3丁目16-11

26 m²/K
2021
マンション
押上駅 徒歩12分
Property 0Property 1Property 2Property 3Property 4Property 5Property 6Property 7Property 8Property 9Property 10
オートロックバイク置き場駐輪場
11万円 + 20,000 / 月
ルーブル亀戸天神前

東京都江東区亀戸3丁目9-2

25.5 m²/K
2014
マンション
錦糸町駅 徒歩11分
Property 0Property 1Property 2Property 3Property 4Property 5Property 6Property 7Property 8Property 9Property 10
24時間セキュリティオートロックバイク置き場
10.5万円 + 15,000 / 月
クレヴィスタ亀戸Ⅳ

東京都江東区亀戸2丁目31-2

25.5 m²/K
2020
マンション
亀戸 徒歩4分
Property 0
インターネット使用料無料防犯カメラ浴室乾燥機
11.5万円 + 10,000 / 月
ARTESSIMO CLAIRTORTE

東京都江東区亀戸6丁目42-7

25.5 m²/1DK
2022
マンション
亀戸駅 徒歩5分
Property 0
インターネット使用料無料防犯カメラウォークインクローゼット
12万円 / 月
・ALTERNA亀戸

東京都江東区亀戸1丁目31-6

25.5 m²/1K
2022
マンション
亀戸駅 徒歩5分
Property 0Property 1Property 2Property 3Property 4Property 5Property 6Property 7Property 8Property 9Property 10
ペット相談ペット可オートロック
10.5万円 / 月
ARTESSIMO MONDO

東京都江東区亀戸3丁目44-6

26.4 m²/R
2013
マンション
亀戸 徒歩11分
Property 0
インターネット使用料無料ウォークインクローゼット浴室乾燥機
9.5万円 + 8,000 / 月
AZEST亀戸Ⅱ

東京都江東区亀戸5丁目38番6号

25.8 m²/1K
2018
マンション
亀戸駅 徒歩7分
Property 0
1 / 3 ユニット
エレベーターバルコニー防犯カメラ
10.5万円 / 月
ユリカロゼAZ亀戸Ⅱ

東京都江東区亀戸4丁目52-以下未定

26.2 m²/1K
2025
マンション
亀戸駅 徒歩10分
ご質問はありますか?
資料請求 / 内見予約
首都圏 1課②
首都圏 1課②
株式会社FPR
プロフィールをみる
この担当者に問い合わせる