

東京都江東区東雲1丁目9-18

東京都江東区東雲1丁目9-18

東京都江東区東雲1丁目9-18

東京都江東区東雲1丁目9-21






東京都江東区東雲1丁目9-20

東京都江東区東雲1丁目9-18
| 年 | 平米単価 | 総戸数 |
|---|---|---|
| 2025 | 82.4万円 Prices: 99.8万円 / 64.9万円 | 2 |
| 2023 | 72.5万円 Prices: 49.8万円 / 77万円 / 62.3万円 / 125万円 / 48.5万円 | 5 |
| 2022 | 70.3万円 Prices: 47.5万円 / 73万円 / 60.4万円 / 123万円 / 47.4万円 | 5 |
| 物件名 | 東雲キャナルコート 1116号 |
|---|---|
| 建物名 | 東雲キャナルコート |
| 所在地 | 東京都江東区東雲1丁目9-14 |
| 部屋番号 | 1116号 |
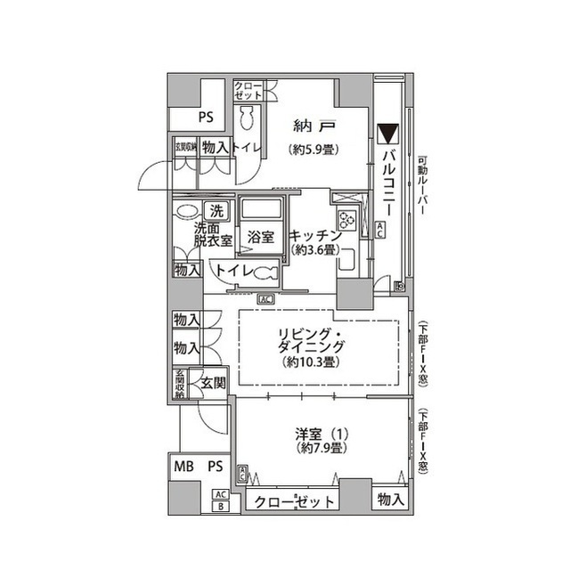
| 間取り | 2LDK |
| バルコニー方向 | - |
| 賃料 | 20万円 |
|---|---|
| 管理費 | 10,000円 |
| 共益費 | - |
| 敷金 | - |
| 礼金 | - |
| 保証金 | - |
| 敷引き | - |
| 権利金 | - |
| 鍵交換代 | 3.3万円 |
| 初回保証委託料 | - |
| 年間保証委託料 | - |
| 契約期間 | - |
| 定期借家 | - |
|---|---|
| 賃貸借期間 | - |
| 更新可 | - |
| 更新料 | 1 |
| 専有面積 | 57.5 |
|---|---|
| バルコニー面積 | - |
| 専用庭面積 | - |
| アクセス | 辰巳駅 (徒歩8分) |
|---|
| 築年月 | 2003年7月 |
|---|---|
| 階部分 | 11階 |
| 階建 | 14階 |
| 地下階建 | - |
| 構造 | RC造 |
| 駐車場空あり | - |
|---|---|
| 駐車場月額 | - |
| 現況 | 入居中 |
|---|---|
| 現況詳細 | 入居中 |
| 引渡時期 | 2026年6月上旬予定 |






東京都江東区東雲1丁目9-18






東京都江東区東雲1丁目9-16

東京都江東区東雲1丁目9-17

東京都江東区東雲2丁目3-14

東京都江東区東雲2丁目2番14号

東京都江東区東雲2丁目2-14

東京都江東区東雲1丁目9-18

東京都江東区東雲1丁目9-18

東京都江東区東雲1丁目9-22

東京都江東区東雲1丁目1-16

東京都江東区東雲1丁目9-22