Open Room Logo
1 / 6

東雲キャナルコートCODAN14号棟

東京都江東区東雲1丁目9-14

賃料

24万円 / 月

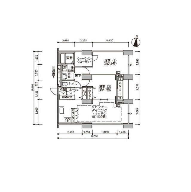
間取りと広さ

LDK / 73 m²
掲載日
3/4/2026
物件種別
マンション
築年数
2003
2
賃料/面積
3,287.7円
最終更新日: 2026年3月4日
物件情報は不動産エージェント提供のものですが、掲載時点から状況が変わり現在は最新でない場合があります。内容の正確性について当サイトは保証・責任を負いません。詳細は担当エージェントへお問い合わせください。

特徴・設備

エアコン
床暖房
宅配ボックス
駐輪場
バイク置き場
オートロック

その他

追焚機能
温水洗浄便座
洗面台
室内洗濯機置場
インターネット対応
モニター付きインターホン

交通

最寄り駅

東京メトロ有楽町線
徒歩7分
東京臨海高速鉄道りんかい線
徒歩8分
ゆりかもめ東京臨海新交通臨海線
徒歩14分

周辺環境

エリア情報

学区 (小学校)
第二辰巳小学校
学区 (中学校)
辰巳中学校
用途地域
第2種住居地域
都市計画区域
N/A
区域区分
市街化区域
立地適正化計画
N/A
都市計画道路
N/A

地価公示価格推移

価格/面積総戸数
202582.4万円
Prices:
99.8万円 / 64.9万円
2
202372.5万円
Prices:
49.8万円 / 62.3万円 / 77万円 / 48.5万円 / 125万円
5
202270.3万円
Prices:
47.5万円 / 60.4万円 / 73万円 / 47.4万円 / 123万円
5

物件詳細

基本情報

物件名東雲キャナルコートCODAN14号棟
建物名東雲キャナルコートCODAN14号棟
所在地東京都江東区東雲1丁目9-14
部屋番号0207
間取りLDK
バルコニー方向

賃料

賃料24万円
管理費-
共益費15,000円
敷金24万円
礼金24万円
保証金-
敷引き-
権利金-
鍵交換代-
初回保証委託料-
年間保証委託料-
契約期間2

賃貸

定期借家×
賃貸借期間null
更新可-
更新料24万円

広さ

専有面積73
バルコニー面積-
専用庭面積-

アクセス

アクセス
辰巳 (徒歩8分)
東雲 (徒歩12分)
豊洲 (徒歩18分)

建物情報

築年月2003年7月
階部分2階
階建14階
地下階建1階
構造RC造

駐車場

駐車場空あり-
駐車場月額-

引渡

現況入居中
現況詳細賃貸中
引渡時期-
ご質問はありますか?
資料請求 / 内見予約
首都圏 2課①
首都圏 2課①
株式会社FPR
プロフィールをみる
この担当者に問い合わせる