Open Room Logo
1 / 1

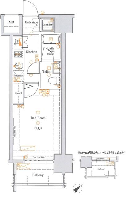
レジデンス高田馬場

東京都新宿区高田馬場4丁目2-10

賃料

6.1万円 / 月

間取りと広さ

1R / 11.5 m²
掲載日
2/20/2026
物件種別
マンション
築年数
2011
1
賃料/面積
5,295.1円
最終更新日: 2026年2月3日
物件情報は不動産エージェント提供のものですが、掲載時点から状況が変わり現在は最新でない場合があります。内容の正確性について当サイトは保証・責任を負いません。詳細は担当エージェントへお問い合わせください。

特徴・設備

エアコン
インターネット使用料無料

その他

シャワー
トイレ
温水洗浄便座
ガスコンロ付
収納スペース
室内洗濯機置場
洗濯機置場
給湯
都市ガス
フローリング
全居室フローリング
インターネット対応
光ファイバー

交通

最寄り駅

徒歩3分
徒歩4分
東京メトロ東西線
徒歩5分

周辺マップ

6.1万円

周辺環境

エリア情報

学校 (小学校)
戸塚第三小学校
学校 (中学校)
新宿西戸山中学校
都市計画
N/A

地価公示価格推移

価格/面積総戸数
2025216.3万円
Prices:
450万円 / 97.6万円 / 80.5万円 / 296万円 / 120万円 / 260万円 / 139万円 / 93.2万円 / 410万円
9
2023133.5万円
Prices:
135万円 / 383万円 / 75.8万円 / 133万円 / 73.1万円 / 97.6万円 / 213万円 / 101万円 / 69.1万円 / 71.7万円 / 59.8万円 / 99.5万円 / 227万円 / 91.4万円 / 238万円 / 68万円
16
2022137.2万円
Prices:
133万円 / 383万円 / 74.3万円 / 133万円 / 72.5万円 / 97.6万円 / 213万円 / 100万円 / 68.7万円 / 71万円 / 58万円 / 96.9万円 / 229万円 / 90万円 / 238万円
15
ご質問はありますか?
資料請求 / 内見予約
首都圏 2課①
首都圏 2課①
株式会社FPR
プロフィールをみる
この担当者に問い合わせる