
| 年 | 価格/面積 | 総戸数 |
|---|---|---|
| 2025 | 82.8万円 Prices: 56.3万円 / 127万円 / 65.2万円 | 3 |
| 2023 | 52.3万円 Prices: 57.6万円 / 45.8万円 / 51.1万円 / 53.7万円 / 63.3万円 / 48.1万円 / 46.6万円 | 7 |
| 2022 | 51.7万円 Prices: 56.1万円 / 45.3万円 / 50.5万円 / 53.5万円 / 62.8万円 / 47.5万円 / 46.1万円 | 7 |
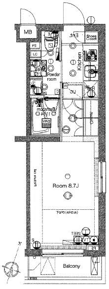
| 物件名 | メイクスデザイン池上アジールコート |
|---|---|
| 建物名 | メイクスデザイン池上アジールコート |
| 所在地 | 東京都大田区池上3丁目7-9 |
| 部屋番号 | 306 |
| 間取り | K |
| バルコニー方向 | 南東 |
| 賃料 | 9万円 |
|---|---|
| 管理費 | - |
| 共益費 | 15,000円 |
| 敷金 | - |
| 礼金 | 1 |
| 保証金 | - |
| 敷引き | - |
| 権利金 | - |
| 鍵交換代 | - |
| 初回保証委託料 | - |
| 年間保証委託料 | - |
| 契約期間 | 2 |
| 定期借家 | × |
|---|---|
| 賃貸借期間 | null |
| 更新可 | - |
| 更新料 | 1 |
| 専有面積 | 25.52 |
|---|---|
| バルコニー面積 | 3.23 |
| 専用庭面積 | - |
| アクセス | 池上 (徒歩7分) 千鳥町 (徒歩14分) |
|---|
| 築年月 | 2014年4月 |
|---|---|
| 階部分 | 3階 |
| 階建 | 5階 |
| 地下階建 | - |
| 構造 | RC造 |
| 駐車場空あり | - |
|---|---|
| 駐車場月額 | - |
| 現況 | 入居中 |
|---|---|
| 現況詳細 | 所有者居住中 |
| 引渡時期 | - |