
| 年 | 価格/面積 | 総戸数 |
|---|---|---|
| 2025 | 76.2万円 Prices: 69.8万円 / 73.7万円 / 85万円 | 3 |
| 2023 | 73万円 Prices: 65万円 / 53.6万円 / 62.2万円 / 75.5万円 / 73.8万円 / 108万円 / 52.9万円 / 75.9万円 / 108万円 / 53.4万円 / 82.4万円 / 65.1万円 | 12 |
| 2022 | 72.4万円 Prices: 65万円 / 53.6万円 / 62.2万円 / 74.9万円 / 70.9万円 / 107万円 / 52.4万円 / 75.5万円 / 108万円 / 53.2万円 / 81.2万円 / 64.5万円 | 12 |
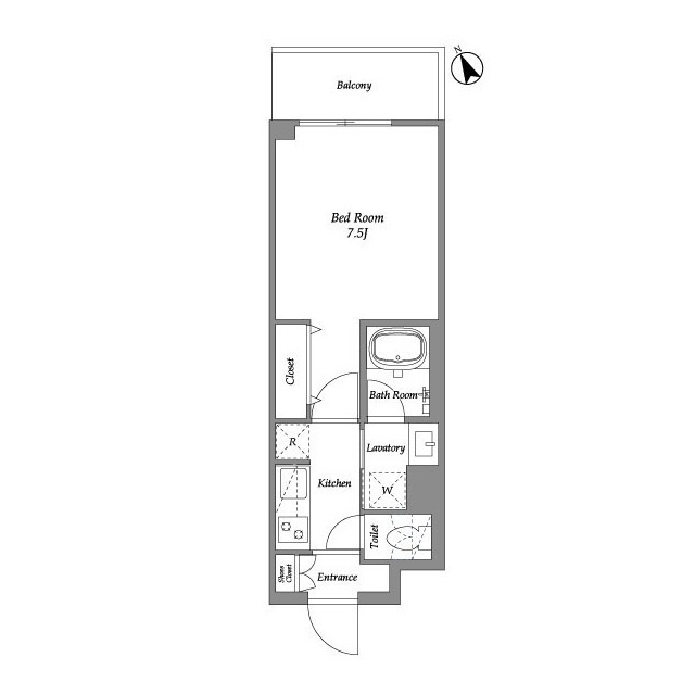
| 物件名 | EMパレス田園調布 |
|---|---|
| 建物名 | EMパレス田園調布 |
| 所在地 | 東京都大田区田園調布本町26-9 |
| 部屋番号 | 210 |
| 間取り | K |
| バルコニー方向 | 北東 |
| 賃料 | 11.5万円 |
|---|---|
| 管理費 | - |
| 共益費 | 10,000円 |
| 敷金 | 11.5万円 |
| 礼金 | 11.5万円 |
| 保証金 | - |
| 敷引き | - |
| 権利金 | - |
| 鍵交換代 | - |
| 初回保証委託料 | - |
| 年間保証委託料 | - |
| 契約期間 | 2 |
| 定期借家 | × |
|---|---|
| 賃貸借期間 | null |
| 更新可 | - |
| 更新料 | 11.5万円 |
| 専有面積 | 25.02 |
|---|---|
| バルコニー面積 | - |
| 専用庭面積 | - |
| アクセス | 沼部 (徒歩2分) 多摩川 (徒歩11分) 御嶽山 (徒歩13分) |
|---|
| 築年月 | 2025年1月 |
|---|---|
| 階部分 | 2階 |
| 階建 | 4階 |
| 地下階建 | - |
| 構造 | RC造 |
| 駐車場空あり | - |
|---|---|
| 駐車場月額 | - |
| 現況 | 入居中 |
|---|---|
| 現況詳細 | 賃貸中 |
| 引渡時期 | - |